Architectural Drawings Map
Naksha 3D Design 2D Drawings Design
Plan your house and building modern style and
design your house and building with 3D view
 |
| 2x45 ground floor plan |
Get approve your drawing with respective housing society
 |
| Front elevation |
 |
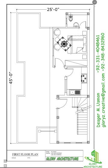
| 25x45 first floor plan |
Make your house and building
interior and exterior solution.
 |
| 25x45 Ground floor plan |
Renovation of you house and building
Make beautiful your business with
good and durable with interior design
we have engineering services for your project
construction on resealable price. houses building palaza.
masjid. shopes , offices. parking areas.
visit your site ..
Architectural Drawings.
Structural Drawings.
electrical drawings.
plumbing drawings.
firefighting drawings.
details drawings.
working drawings.
submission drawings
house plan, commercial plan